X
Startseite
Gastgeber
Restaurants und Gastronomie
Freizeit, Sehenswürdigkeiten und mehr
Unser Reisemagazin für Baden-Württemberg
Veranstaltungen
Rad- und Wanderwege
Anmelden & Werben
okay
 Erfolgreich zur Merkliste beigefügt

Sie haben den Anbieter erfolgreich zu Ihrer Merkliste hinzugefügt.

Ihre Merkliste erreichen Sie über das -Symbol im Seitenkopf.

 Erfolgreich von der Merkliste entfernt

Sie haben den Anbieter erfolgreich von Ihrer Merkliste entfernt.

 Erfolgreich von der Merkliste entfernt

Sie haben den Anbieter erfolgreich von Ihrer Merkliste entfernt.

Gästehaus Zollerblick

Telefonnummer anzeigen
Unverbindlich anfragen
für 2 Personen/Nacht
ab € 70,00
auf Anfrage
Kontakt mit dem Hotels und Ferienwohnungen
Herr Robert Bogenschütz
Lage
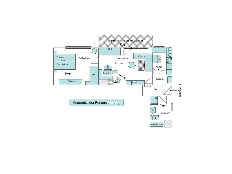
Aufteilung
 Maximale Belegung: 4
 Schlafzimmer: 1
 Wohnzimmer: 1
 Badezimmer: 1
 Küche: 1
Mindestaufenthalt: 3 Nächte
Ausstattung
Allergikergeeignet · Fernsehgerät · Internet, Wlan, Wifi · Kinderbett · Pool · Schöne Aussicht
Wir sprechen
deutsch
english
Teilen auf
Aktualisiert am: 21.11.2025
Beschreibung

Gästehaus Zollerblick

Treten sie ein...

....fühlen sie sich wie zu Hause, in der geschmackvoll eingerichteten Wohnung, auf dem über 800 qm großen Grundstück mit großzügigem Garten. Die komplett und gut ausgestattete Ferienwohnung mit 63 qm Wohnfläche, hat einen separaten Eingang und zusätzlich eine 15 qm große überdachte Terrasse auf der Südseite.

Genießen sie an warmen Sommertagen eine Abkühlung im Garten-Pool.

Die helle freundliche Wohnung bietet Platz für 4 Personen. Sie verfügt über 1 Schlafzimmer mit 3 Betten und 1 Wohnzimmer mit einer oder zwei  weiteren Schlafmöglichkeiten.

Platz für die ganze Familie bietet der Essplatz mit Eckbankgruppe im Wohn-/Esszimmer. Das Wohnzimmer ist außerdem mit einem Kaminofen ausgestattet. Genießen sie in dem 25 qm großen Wohnzimmer einen romantischen Abend am Kaminofen, im Kerzenschein beim Lodern des Kaminfeuers. Unser Haussekt "Burg Hohenzollern" steht bei ihrer Ankunft schon bereit.

  • Während ihres Aufenthalts, steht ihnen ein TV-Gerät, ein Radio mit CD-Player sowie ein Internet-WLAN-Anschluss und ein Telefon, kostenlos zur Verfügung.
  • Die Küche ist ebenfalls komplett ausgestattet und geradezu ideal für eine Selbstversorgung. Im Duschbad mit WC sind ausreichend Handtücher vorhanden. Die Bettwäsche wird ebenfalls gestellt.

Ausstattung

  • 4-Bett Appartement, 63 qm, ebenerdig (zusätzliches Kinderbett vorhanden)
  • ruhige sonnige Südhanglage
  • separater, überdachter Eingangsbereich
  • helle freundliche Wohnräume mit kompletter Einrichtung und Ausstattung
  • Nichtraucherwohnung
  • Wohnzimmer mit Couchgarnitur, TV-Gerät und Kaminofen
  • Schlafzimmer (wahlweise Einzelbetten oder Doppelbetten, Babybett vorhanden), Bettwäsche wird gestellt
  • Küche (Einbauküche mit Cerankochfeld, Backofen, Microwelle, Geschirrspüler, Kühlschrank, Gefrierfach, Kaffeemaschine, Toaster, Eierkocher, kompl. Geschirr)
  • Dusche mit WC (ausreichend Handtücher vorhanden)
  • Tisch- und Bettwäsche wird gestellt
  • überdachte, große Terrasse mit Markiese und Terrassenmöbel
  • Garten mit Liegewiese, Garten-Pool und Liegen
  • Kostenlose Benutzung des Telefons
  • Internet / kostenfreie WLAN-Nutzung
  • sehr gut ausgestattete Wohnung
  • Kinderspielplatz in nur 100 m Entfernung
  • Garagenstellplatz für Fahrräder und Motorräder
  • Pkw-Abstellplatz auf dem Grundstück
  • direkter Fuß- und Wanderweg zur Burg Hohenzollern im Naturschutzgebiet
Preise
für 2 Personen/Nacht
ab € 70,00
jede weitere Person pro Nacht
ab € 20,00
für 2 Personen/Woche
ab € 450,00
jede weitere Person pro Woche
ab € 140,00
Weitere Preisinformationen
Barzahlung
Mindestaufenthalt
ab 3 Nächte
Nebenkosten inklusive
Maximale Belegung
bis 4 Personen
Details

Endreinigung, Bettwäsche, Handtücher usw. sind inclusive.

Kontakt mit dem Hotels und Ferienwohnungen
Herr Robert Bogenschütz
Objektanschrift
In der Ganswies 3 , 72406 Bisingen bei Hechingen-Zimmern
Unverbindlich anfragen
Telefonnummer anzeigen
Ausstattung
Zimmeraufteilung
Küche: 1
Schlafzimmer: 1
Wohnzimmer: 1
Badezimmer: 1
Lage
Am Wald
Ruhige Lage
Schöne Aussicht
Service und Annehmlichkeiten
Abholservice
Geeignet für
Allergikergeeignet
Nichtraucher
Monteure
Wanderurlaub
Wohnen und Schlafen
Backofen
Bettwäsche
Bügelbrett und Bügeleisen
Föhn
Geschirr
Handtücher
Herd
Kaffeemaschine
Kamin, Ofen
Kinderbett
Kühlschrank
Mikrowelle
Schlafsofa
Spülmaschine
Toaster
Wasserkocher
Doppelbett: 1
Einzelbett: 2
Babybett
Dusche
Esstisch
Kleiderschrank
Sofa
WC
Unterhaltung
Fernsehgerät
Internet, Wlan, Wifi
Radio, Stereoanlage
Telefon
Aussenbereich
Garten
Liegewiese
Parkplätze
Separater Eingang
Terrasse, Innenhof
Unterstellmöglichkeiten für Fahrräder
Unterstellmöglichkeiten für Motorräder
Wellness
Pool
Entfernungen
Entfernung zum Bäcker: 2 Kilometer
Entfernung zum Bahnhof: 2 Kilometer
Entfernung zur Bushaltestelle: 0,100 Kilometer
Entfernung zur Einkaufsmöglichkeit: 2 Kilometer
Entfernung zum Flughafen: 60 Kilometer
Entfernung zum Restaurant: 0,200 Kilometer
Freizeitmöglichkeiten
Golf
Minigolf
Radfahren
Schwimmen
Wandern
Ballspiele
Reiten
Tennis
Kinderspielplatz
Kino
Sehenswürdigkeiten
Lage
Freizeit und Sehenswürdigkeiten
Unverbindlich anfragen